הפרויקט תוכנן מתוך הקשבה לסביבה העירונית שמקיפה אותו. קווים נקיים, פרופורציות מדויקות ואדריכלות אלגנטית שמשתלבת בטבעיות בצפון הישן והחדש. בניין בוטיק אינטימי, שמעניק לכם יותר שקט ופרטיות, בלי להתאמץ להרשים.








התכנון הפנימי בדירות שם את החיים עצמם במרכז. כל דירה נהנית מחלוקה חכמה, חללים מוארים וחיבור טבעי בין הפנים לחוץ. תמהיל הדירות מגוון וכולל דירות גן, דירות 2-3 חד׳ ופנטהאוזים בני 4 חד׳ עם בריכת שחייה פרטית וחניה לכל דירה.
כאן, פארק הירקון הוא לא ”יעד לסופ״ש“ – הוא חלק משיגרת חייכם. מסלולי הליכה וריצה, שבילי אופניים לאורך הנחל, מדשאות לפיקניק ופינות ירוקות שמורידות את הווליום של העיר ועדיין משאירות אתכם במרכז העניינים. בדיוק מה שהופך את החיים ליותר קלים, בריאים ותל־אביביים.
בסביבה הקרובה ללואי פינת אנטיגונס, מחכה כל מה שטעים בעיר: בתי קפה של בוקר, פטיסרי לקפיצה ספונטנית, ומסעדות שף לארוחה רומנטית וברים אופנתיים לסגור את הלילה. החוויה הקולינארית של תל אביב מלווה אתכם לאורך כל שעות היממה, והכי חשוב, במרחק הליכה קצר
לבחירתכם דירות 2.5-4.5 חדרים, דירות גן ופנטהאוזים – כל מה שדרוש כדי להרגיש בבית בעיר הגדולה.
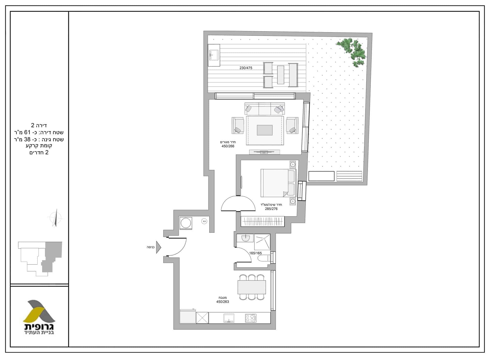
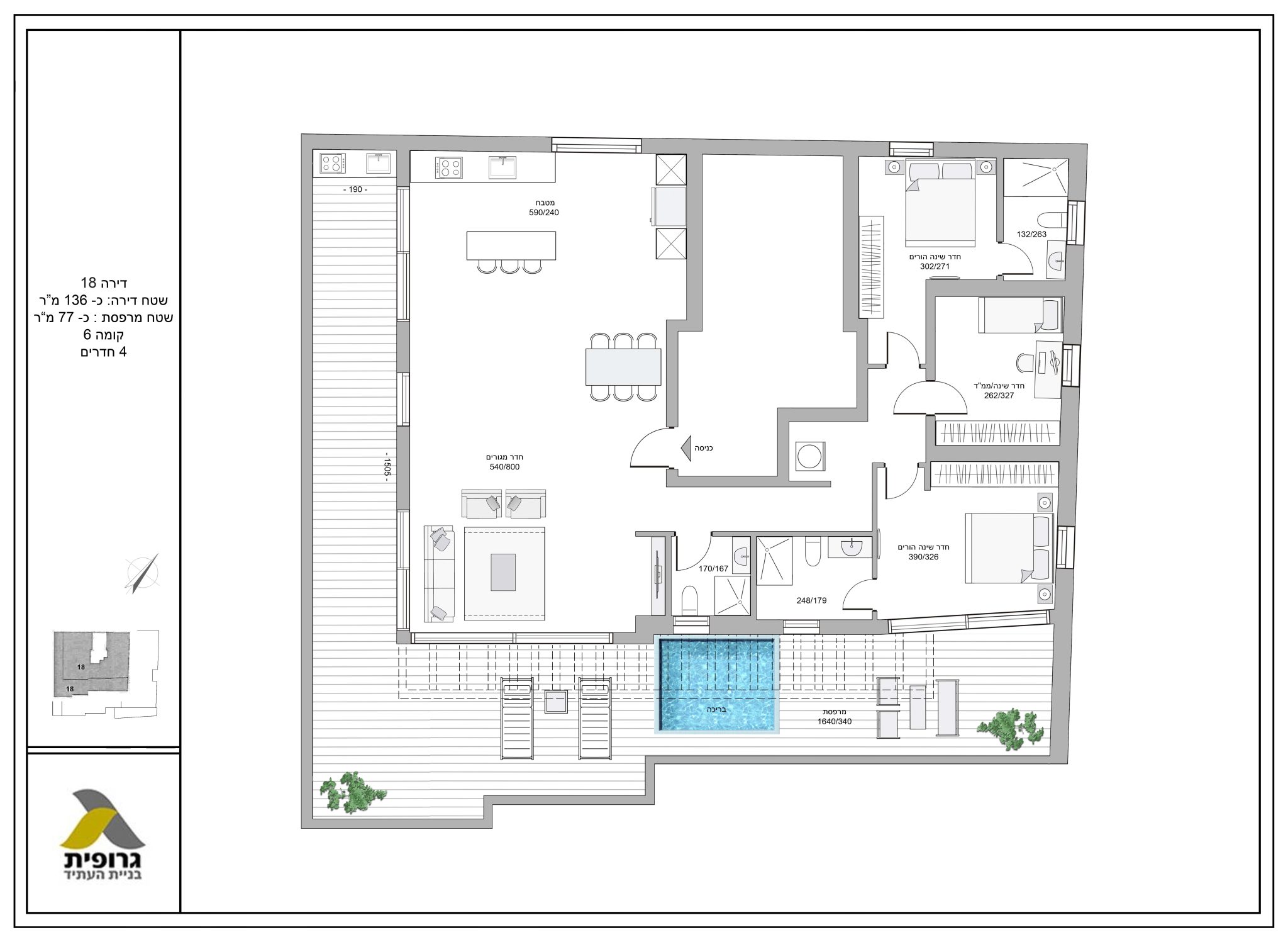
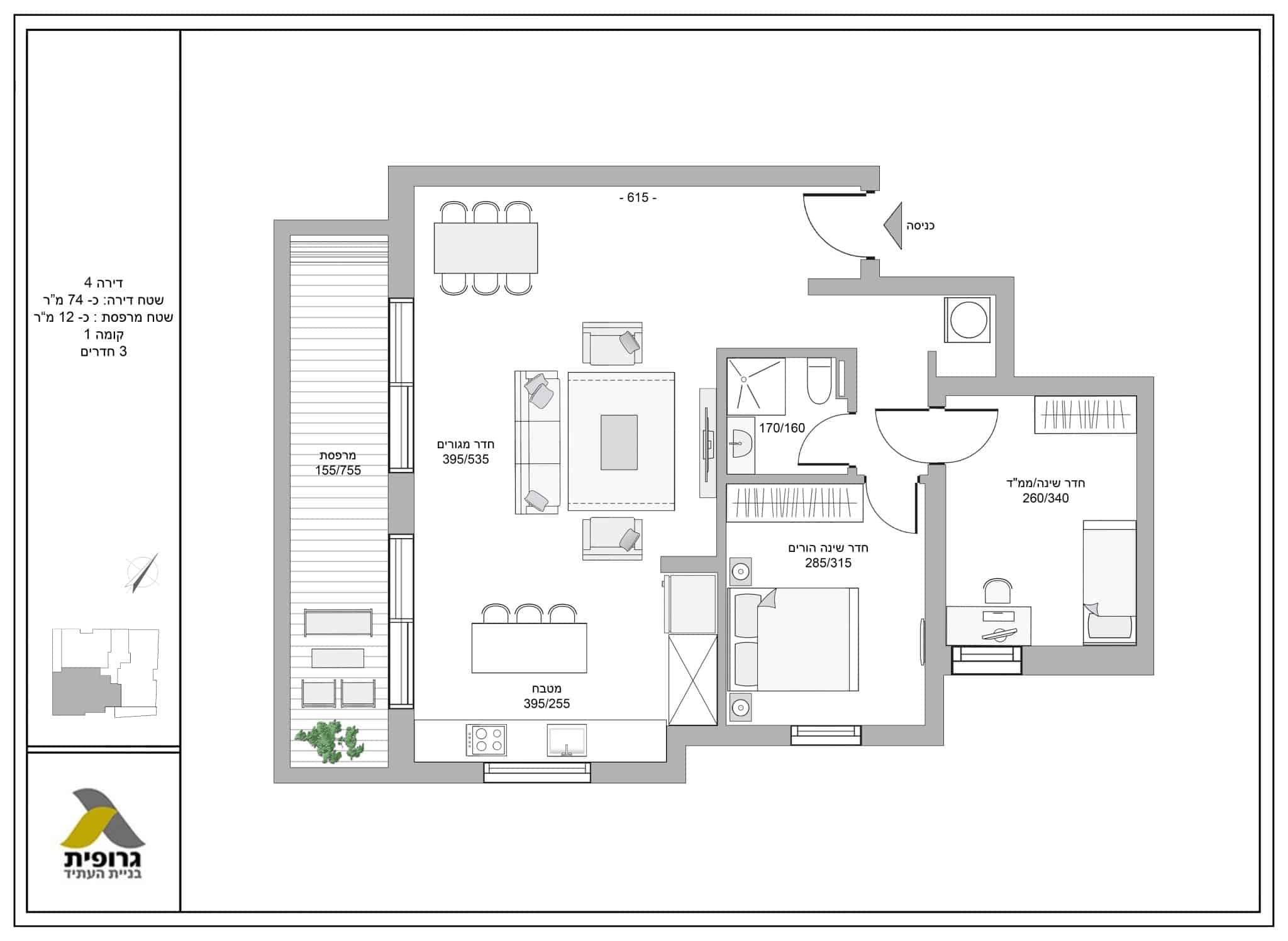
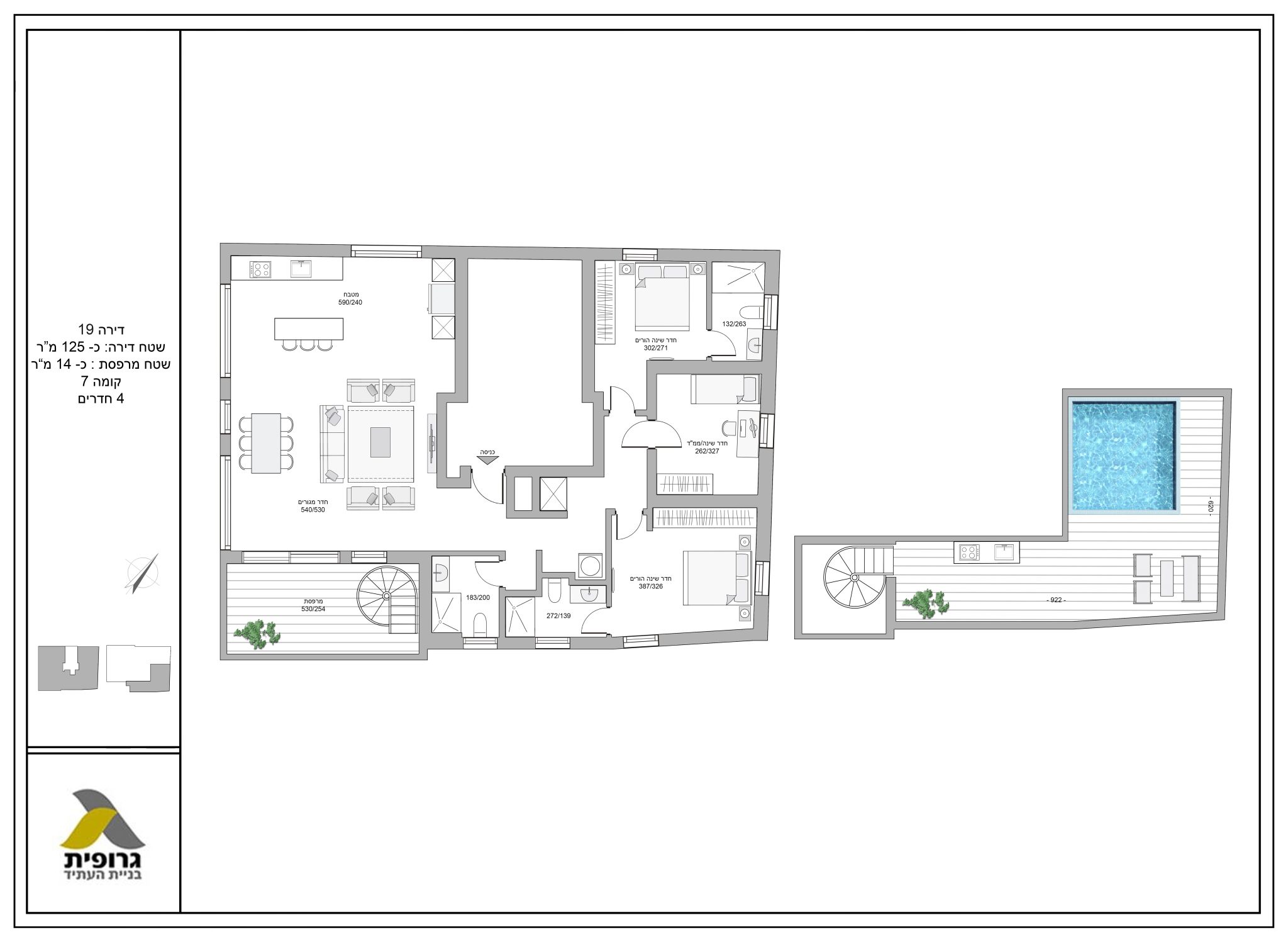
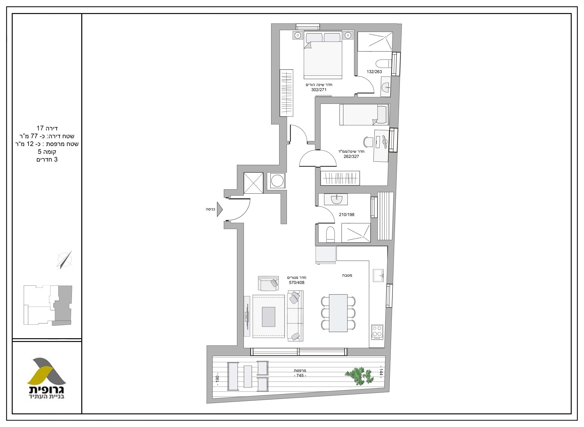
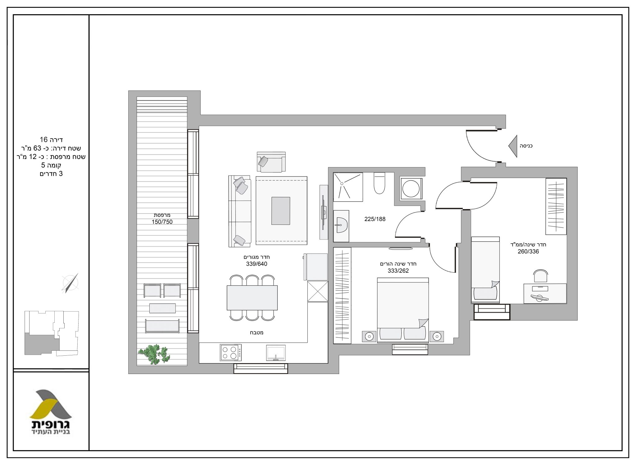
התוכנית אינה סופית. ייתכנו שינויים בתוכנית עקב דרישות הרשויות, התוכנית להמחשה בלבד. המידות המופיעות בתוכניות הן מידות בניה של קירות ובין הקירות ללא הציפויים (טיח, קרמיקה וכד').
הריהוט לרבות העמדת המטבח והעמדת הכלים הסניטרים והשיש במטבח הינם להמחשה ומידע בלבד. מובהר כי את החברה יחייבו המפרט הטכני ותוכנית המכר החתומים המצורפים להסכם המכר בלבד. ט.ל.ח.
חברת הבניה גרופית הינה חברה פרטית בעלת ניסיון של 50 שנים בענף הנדל"ן. החברה מוגדרת על ידי משרד הבינוי והשיכון כ"חברה משכנת בלתי מוגבלת" ומסווגת ברשם הקבלנים בסיווג בלתי מוגבל ג .5 גרופית מתמחה בכל שלבי הייזום, התכנון, הביצוע והשירות של פרויקטים למגורים, מסחר, לוגיסטיקה, משרדים, מלונאות, מעונות סטודנטים, דיור מוגן ומקבצי דיור.בזכות צוות מקצועי, מסור ומנוסה בכל תחומי הבנייה הפועל ברגישות רבה ועם הבנה עמוקה של צרכי לקוחות החברה, החברה ממשיכה לשגשג, להצטיין ולהוביל את שוק הנדל"ן הישראלי אל העתיד.
שדרות נים 2, ראשל"צ – קניון ראשונים, מגדל עסקים, קומה 5